Дом по адресу Новосибирск, Мошковский район, за 1350000 р.

Адрес Новосибирск, Мошковский район, село Сарапулка, Советская улица
Цена 1 350 000 р.
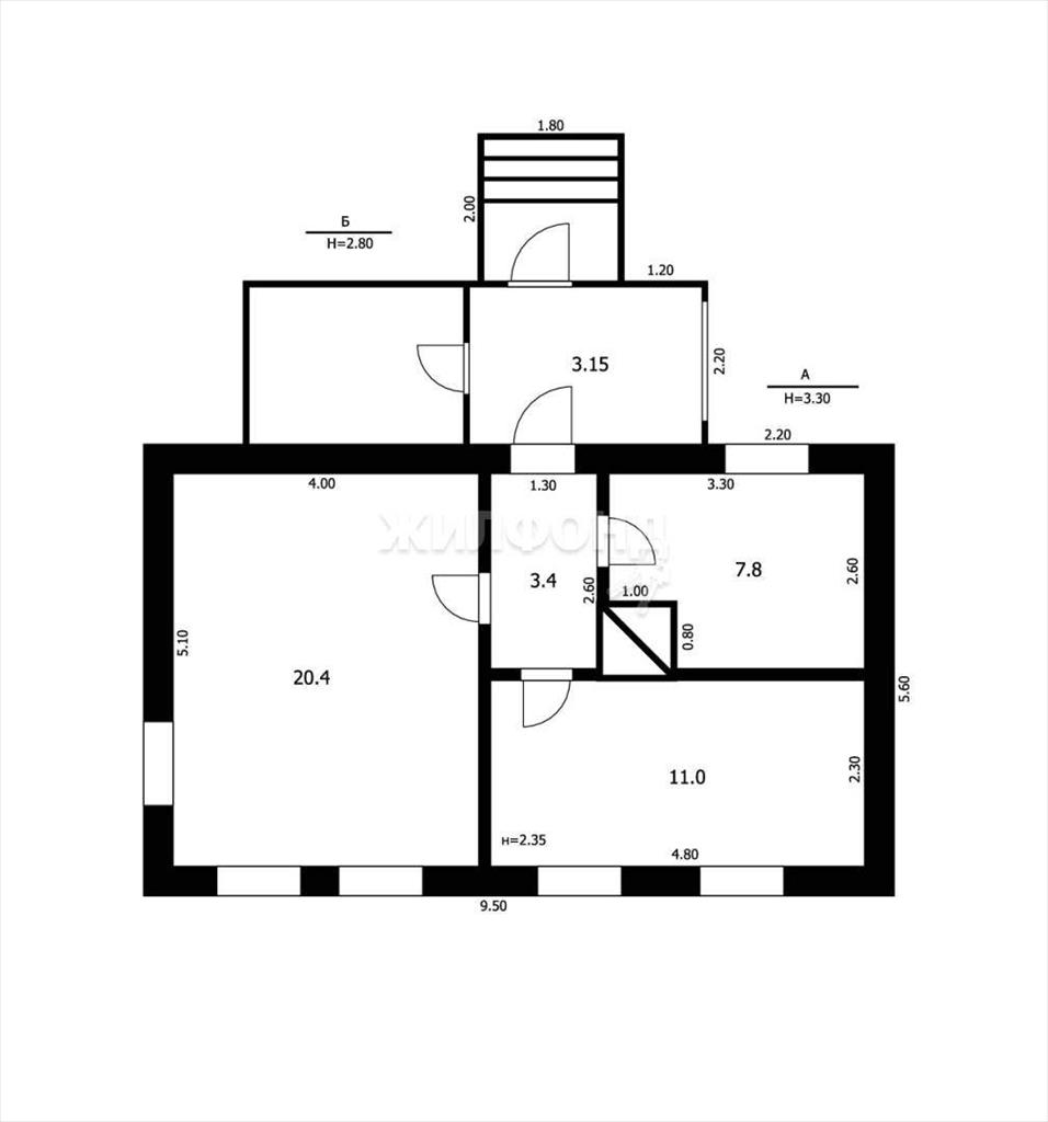
Площадь дома 42,6 м2, участка 22,75 м2
Дом по ул. Советская. Общей площадью: 42.60 кв.м. Предлагаю к продаже дом 42.6 кв. в живописном с. Сарапулка Мошковского района. Дом из половинчатого бревна на ленточном фундаменте. В доме кухня 7,8 кв. , комнаты 11 и 20 квадратов. Отопление печное-водяное, вода центральная, окна пластиковые, потолки высокие. Санузел на улице. Шикарный участок 22 сотки, правильной, квадратной формы. На участке имеется дровник, углярка, хоз. блок, баня, летняя кухня из бревна. В пяти минутах ходьбы река ИНЯ, где можно отдохнуть, так и порыбачить. Дом расположен в Центре поселка , поэтому всё необходимое для комфортной жизни в шаговой доступности - магазины, поликлиника, почта, администрация района. Детский сад 500 метров, школа 600-700 метров. До станции Буготак 15 минут пешком, откуда на электричке можно попасть в любую точку Новосибирска. До районного посёлка Мошково 20 км, регулярно ходят рейсовые автобусы. с Мошково так же можно на рейсовом автобусе добраться до Новосибирска . Возможен обмен на общежитие в г. Новосибирске Первомайского района. Возможен обмен на вашу недвижимость. Возможна продажа в рассрочку. При звонке, пожалуйста, сообщите номер варианта - JV008054164150
Объявление № 23092326
Дата подачи:
30 июля 2025 г. 23:41
Дата обновления:
30 июля 2025 г. 23:41
Просмотров 15 Хотите продать быстрее?

Продавец
Юлия Анатольевна
Показать номер телефона
Пожаловаться
Комментарии:
Добавить